Golf Clubhouse

Golf Clubhouse

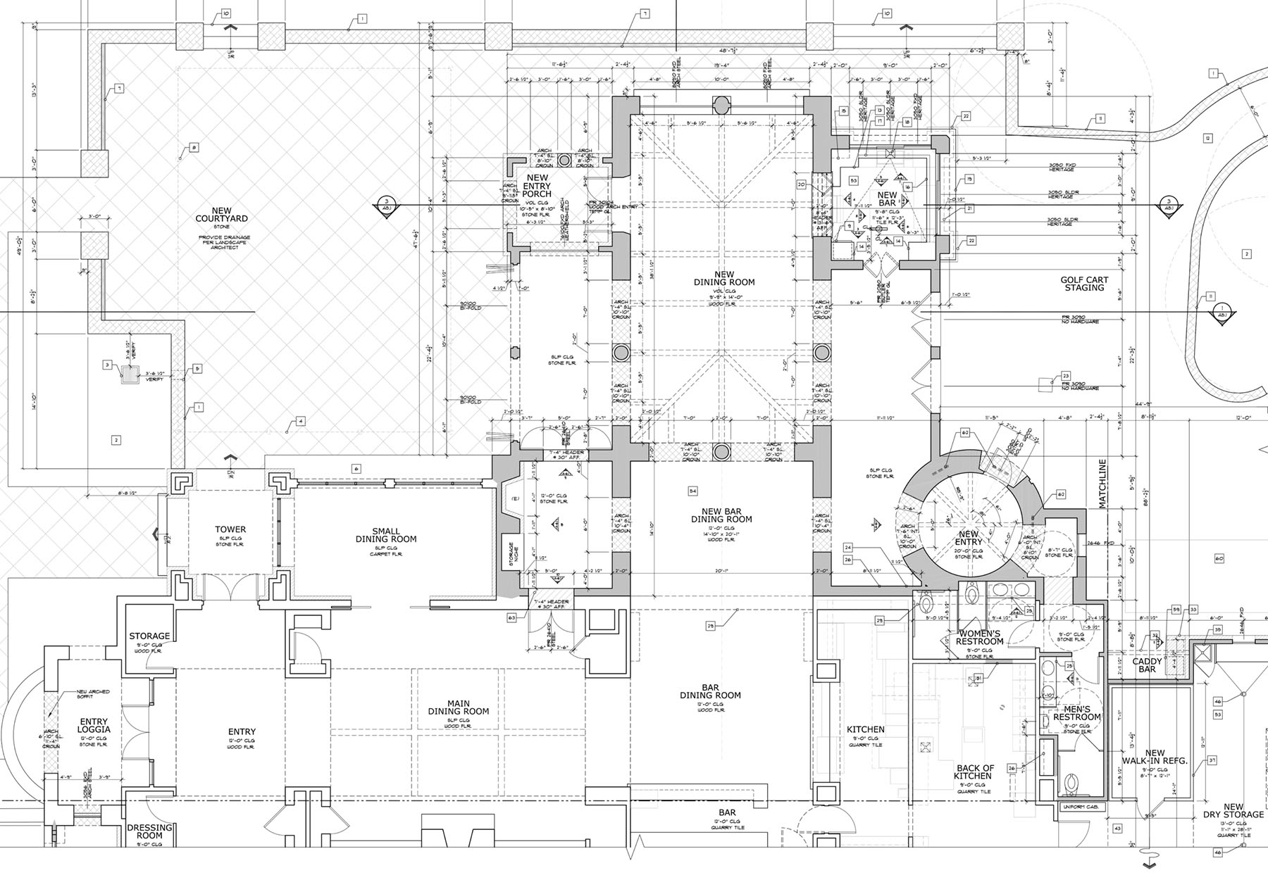
New Clubhouse Addition with comprehensive remodel, renovation, and materials updating to existing private club.  New Kitchen, new Bar, new Dining area, new Private Dining, new Retail space and new Restrooms.  Exterior courtyard and landscape design were integral to the updated design along with a new golf cart staging area.  Native plant materials, sustainable construction techniques, and flexible space planning all come together to form a newly visioned Golf Club.  Custom furniture was designed including end-grain mesquite tables locally sourced and fabricated.  Specialty custom light fixtures were fabricated to match existing fixtures brought in from San Miguel de Allende, Mexico.

° Architectural and Planning work was done while Managing Partner and Principal in Charge of the project at another architectural firm.